百姓厂房网   发布房源 求租求购
百姓厂房网   >      >   深圳市松岗满京华科创工坊全新红本产业园研发办公厂房出租
(编号:187030) 深圳市松岗满京华科创工坊全新红本产业园研发办公厂房出租
发布时间: 2023-12-13 16:30:47 房源状态: 出租中
  • 扫描该【房源】二维码
    查看该【房东】联系方式
  • 浏览
  • 浏览数:855
    收藏数:0
所在区域: 深圳 / 满京华 建筑结构:
厂房面积: 120000 车辆出入:
出租价格: 42 元/月 配电容量: KVA
办公面积: 可否分租:
空地面积: 是否独院:
所在楼层: 层      层高: 有无货梯:
具体位置: 满京华
详细描述
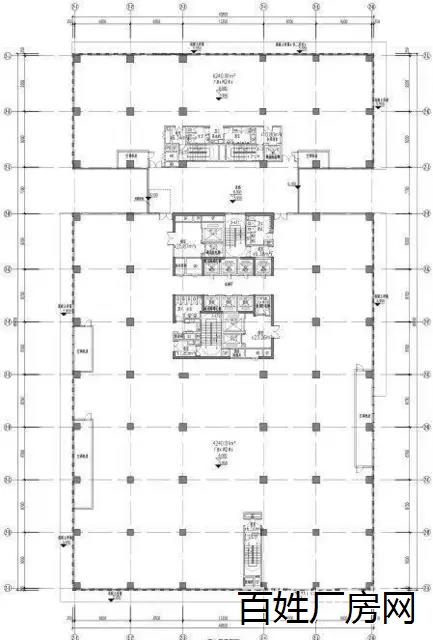
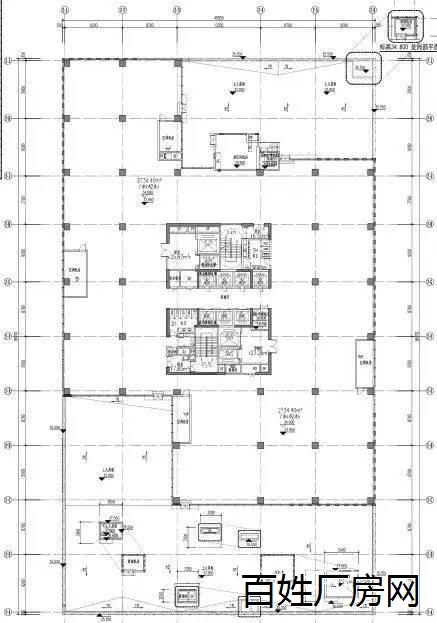
深圳市松岗满京华科创工坊全新红本产业园研发办公厂房???出租n简介:宝安区科技桃花源园区,n满京华集团“工业上楼”扛鼎力作,领航先进制造新引擎。n一、基础信息n【项目位置】:宝安区松岗街道松江路6号(G107国道旁)n【项目占地】:24021㎡n【总建面】:124263㎡,产业园红本研发办公厂房,n【楼栋信息】:1号楼商业,2/3号楼厂房(2号楼总建面6.8万㎡、3号楼5万㎡)n【业态规划】:研发/中试/生产、产业服务平台、商业配套n【使用率】:约82%n【停车位】:地上52个,地下569个,共621个n【交付标准】:公区精装,其他毛坯,nn二、商务条款n【租金】:42-45元/㎡/月,含税。n【租期】:3-10年n【免租期】:2个月免租期n【物管费】:5元/㎡/月(前5年)nn三、项目优势n【产业】:产业基础雄厚,周边汇聚超300家新一代电子信息、智能制造等高新产业集群。n【交通】:临近6号线溪头站、11号线松岗站,毗邻广深公路G107、松福大道、宝安大道,半小时通达光明科学城、宝安国际机场、滨海湾新区、松山湖高新区等。n【商圈】:约150万㎡满纷趣处新地标,约30万㎡满纷天地购物中心(含华南首家杉杉奥特莱斯)及商业街区,满京华优才公寓、满京华樂品酒店。n【运营】:满京华集团开发建设,统一招商统一运营管理。nn四、产品亮点n【产品】高标准厂房+现代化外观+花园式环境+星级大堂及企业展示/服务中心n【层高】:首层6米,标准层4.5-5米n【荷载】:650-1200KG/㎡n2栋【电梯】:2T货梯3部、3T货梯2部(广日品牌),8部客梯(三菱品牌)n3栋【电梯】:2T/3T货梯各2部(广日品牌),6部客梯(三菱品牌)n【配置】2个大型、6个中小型卸货平台,2-10层预留吊装口nn五、户型赏析n1、2栋户型2700-4400㎡,建筑实量面积,4.5-5.0米层高,超82%使用率,2-7层带空中连廊,2-10层设吊装口。 现剩部分租赁面积如下:n4楼4419.63平米, 空置,   8楼2695平米, 空置,n1202:944.67平米, 空置,   1203:1031.41平米, 空置,n13楼2733.39平米, 空置,   14楼2733.39平米, 空置,n15楼2733.39平米, 空置,   16楼1116.59平米, 空置,n17-21楼2734.89平米, 空置,nn2、3栋户型1288-2588㎡,方正实用,建筑实量面积,4.5-5.0米层高,超80%使用率,整层面宽约50米,视野开阔;部分楼层带公共阳台,2-10层设吊装口。现剩少量租赁面积如下:n1202:671.51平米, 空置,   n1801:1191.98平米,空置,nn宝安区科技桃花源园区,满京华集团“工业上楼”扛鼎力作,n产业园红本研发办公厂房,享有宝安区高新、科创补贴。nn详情欢迎有兴趣的老板来电咨询及提前半小时预约实地看房。
【厂房图片】
【地图位置】
【本站点信息均来自转载网络或用户自行上传,其房源信息中陈述文字和内容未经本站证实,对其中全部或者部分内容、文字的真实性、完整性、及时性本站不作任何保证或承诺,信息仅作用户参考,并请自行核实相关内容,如有涉及信息侵犯,请联系我们立即删除。】
猜你查找
深圳市松岗满京华科创工坊全新红本产业园研发办公厂房出租
© 2015-2025 百姓厂房网   -   浙ICP备18033986号-1    浙公网安备 33011002015824号    服务热线:13093751618     服务时间:8:30 - 21:30